Burgenland - Eisenstadt
Ikerház projekt Kismartonban
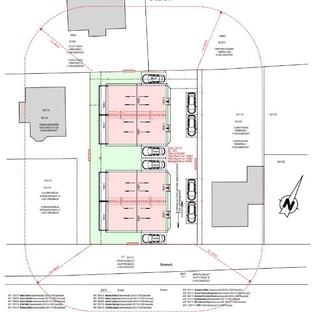
Kismartonban egy 933 m2-es telken 2 ikerház épül, mindkettő 137 m2 hasznos alapterülettel. A befektetési lehetőség 1 év futamidővel €200,000. Fix hozam vagy a projektben való részvétel lehetséges.


Kismartonban egy 933 m2-es telken 2 ikerház épül, mindkettő 137 m2 hasznos alapterülettel. A befektetési lehetőség 1 év futamidővel €200,000. Fix hozam vagy a projektben való részvétel lehetséges.

